Grygar Reality

Kompletně zrekonstruovaný byt 1+kk, 30 m2, Praha 8 – Karlín

Úvod Nemovitosti na prodej Kompletně zrekonstruovaný byt 1+kk, 30 m2, Praha 8 – Karlín

Kompletně zrekonstruovaný byt 1+kk, 30 m2, Praha 8 – Karlín

Lokalita: Nekvasilova, Praha, Hlavní město Praha
Stav nabídky:
Aktivní
Byty
1+kk
č. 114

Novinka na trhu! Prodej elegantního a moderně zrekonstruovaného bytu 1+kk, 30 m2, OV, v rezidenční lokalitě Prahy 8 – Karlín, ulice Nekvasilova. Karlín radikálně změnil svůj vzhled, kdy se z rezidenční industriální čtvrti stala luxusní městská čtvrť pro bydlení a byznys současně. Zatímco na Rohanském nábřeží vzniká moderní architektura, budovám v klasicistním stylu v historickém jádru Karlína se vrací elegantní podoba.
Bytový dům prošel z velké části revitalizací (zateplená fasáda, rozvody vody a odpady, elektroinstalace, výtah, střecha, plastová okna, vstupní vestibul, jako poslední se nyní připravuje rekonstrukce lodžií). Nádherné a klidné místo v zeleni parků s možností procházek k Vltavě na Rohanském nábřeží. PENB: třída B (velmi úsporná).
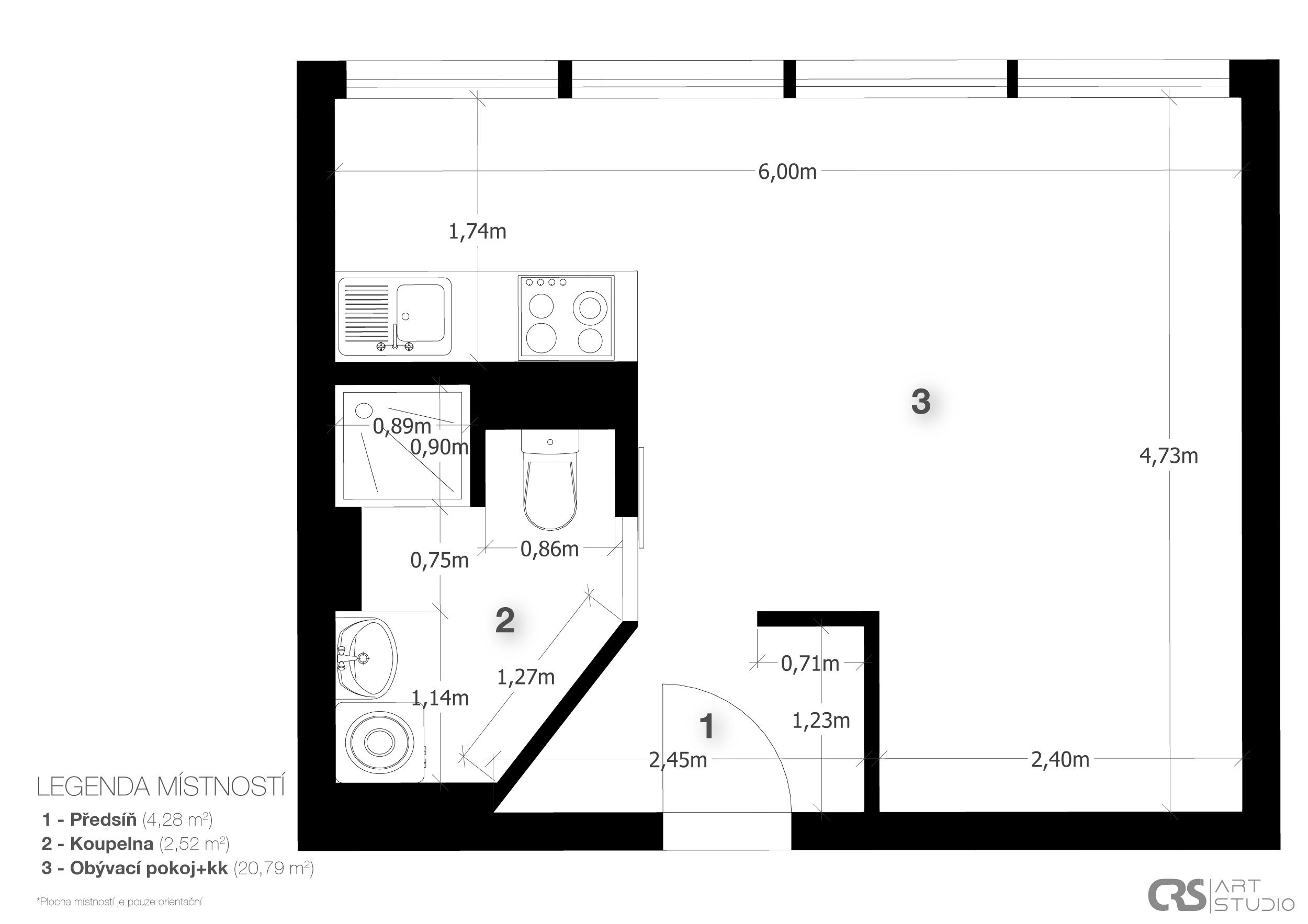
Byt 1+kk, 30 m2 se nachází ve 3.NP/z 8.NP, součástí bytu je komora, která je umístěna ve spojovací chodbě o patro výše, k užívání pro tři byty je lodžie (7 m2) naproti bytu. Byt prošel náročnou kompletní rekonstrukcí dle dnešních moderních trendů, bylo vyměněno a obnoveno úplně vše (veškeré rozvody – voda a odpady v plastu, elektrorozvody v mědi s certifikací, rozveden internet, stropní bodová světla, stropní LED světla na dálkové ovládání, nový topný radiátor, plast. okna, interiérové dveře v pojízdné liště, vstupní dveře, komplet přestavěna koupelna a WC, podlahy – dlažba a vinil, nová kuchyňská linka s vestavěnými elektrospotřebiči). Dispozice bytu: vstupní chodba, vpravo vybudován prostor pro velkou vestavěnou šatní skříň, vlevo vstup do koupelny dveřmi v pojízdné liště, zde je umístěn sprchový kout, WC, skříňka se zapuštěným umyvadlem a zrcadlem, vedle příprava pro pračku. Z předsíně vstupujeme do velkého prostoru pokoje, který je rozdělen na zónu spací a obývací, kolem dokola zásuvky + internet. připojení. Pokoj je otevřen do kuchyně, která je vybavena novou kuchyňskou linkou v šedobílém designu se zabudovanými elektrospotřebiči a LED podsvícením. Byt je atypický tím, že přes celý pokoj i kuchyň jsou instalována okna směrem na JZ, tudíž je byt velmi světlý. Promyšlený interiérový potencionál uspokojí i nejnáročnější zájemce. Byt je laděn do světlých tónů, které mu dávají vzdušnost, neboť bílá linie prostor opticky rozšiřuje. Úkolem bylo vytvořit novou koncepci zcela vybydleného bytu na komfortní, což se podařilo. Měs. poplatky 3 205 Kč (FO 690 Kč, správa 168 Kč, vodné stočné 400 Kč, teplá voda 780 Kč, popelnice 100 Kč, spol. el. 25 Kč, pojištění 30 Kč, odměna v. 180 Kč, teplo 601 Kč, úklid 85 Kč, výtah 70 Kč, provoz 76 Kč). Parkování v modrých rezidenčních zónách u domu. Byt je vhodný nejen k vlastnímu bydlení, ale rovněž i k lukrativnímu pronájmu.
Atraktivní lokalita nabízí vše, co je potřeba ke komfortnímu bydlení: blízkost přírody, procházky kolem Vltavy, nepřeberné množství kavárniček, luxusních restaurací, sportovišť a služeb. Pěší dostupnost k metru „B“, BUS, TRAM. Kdo má rád luxus, vybere Karlín.

Právní servis: ano

Podrobnosti

Cena za nemovitost
5 900 000 Kč (včetně DPH)

Makléř Eva Grygarová

V případě dotazů mě neváhejte kontaktovat.

Základní vlastnosti

Počet pokojů
1
Celkový počet podlaží
8. NP
Podlaží
3. NP
Umístění objektu
2
Stav objektu
Po rekonstrukci
Technologie výstavby
Panelová
Sklep
ano
Parkování
ne
Garáž
ne
Balkon
ne
Výtah
ano
Vybavení
částečně
Bezbariérový přístup
ano

Občanská vybavenost

Služby
ano
Obchody
ano
Lékař
ano
Škola
ano
Školka
ano
Dálnice
Autobus
Železnice

Sítě a energie

Topení ústřední
Kanalizace
Vodovod
Elektro 400V
Elektro 230V
Energetická náročnost
B - Velmi úsporná

Plocha

Užitná plocha
30 m2
Plocha sklep
2 m2
Plocha balkón
7 m2

Nezávazná poptávka





    Odesláním formuláře souhlasíte s podmínkami ochrany osobních údajů.

    Uložit nemovitost

    Nemovitost Vám bude odeslána na zadaný e-mail.


      Odesláním formuláře souhlasíte s podmínkami ochrany osobních údajů.